service-detail-page
about-us
close
language Country

Building a Smarter Future

Planning & Design Resources for Your Surgical and Intensive Care Environments

You know your patients, clinicians and workflows better than anyone. We’re here to help you support them with surgical solutions tailored to your needs. The Hillrom Construction Solutions team offers expert consultation, along with 2D and 3D planning of ASCs, general, hybrid and robotic operating rooms and ICUs. From planning to installation and beyond, we are here to help you create and enhance the safe, efficient workflows you expect for your patients and caregivers.

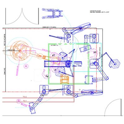
Hillrom Surgical Solutions OR Room Design Layout

General/Universal Operating Rooms

General OR? Outpatient setting in an ambulatory surgery center? We’ve got you covered. With our broad portfolio, we can customize the surgical setup you need to support all your intended clinical applications.

Hillrom Surgical Solutions Hybrid OR Layout

Hybrid Operating Rooms

When planning a hybrid OR, early engagement is key to get all the right stakeholders involved. Our global team of hybrid OR experts and local support teams are well versed in bringing all parties to the table for workflow and requirement assessments. And we’ll bring your vision to life with 2D and 3D planning software, helping to cover all your intended clinical applications.

Learn more

Hillrom Surgical Solutions Robotic OR Layout

Robotic Operating Rooms

It can be hard to imagine all the complexities of a robotic operating room at the beginning of the planning and design process. We make it easier with 2D and 3D imaging, in addition to hands-on consulting, to ensure all your requirements are met. When our customers see how the TS7000dV Surgical Table can support their robotic OR care teams and workflows, they don’t look back.

Learn more

Hillrom Surgical Solutions ICU Room Design Layout

Intensive Care Units

In the Intensive Care Unit, your care teams need to flex and shift on a moment’s notice. Our modular, flexible and convertible ceiling supply units can help them do it. Choose the accessories and services you need, where you need them, to support your workflows with our full line of ICU solutions.

Ready to learn more? Let’s connect.

Meet our Global Construction Solutions Team